Trwają prace nad projektem sali gimnastycznej w Miłaczewie

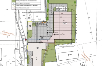
W październiku ubiegłego roku Wójt Gminy Malanów, podpisał umowę na sporządzenie projektu budowy sali sportowej przy Szkole Podstawowej w Miłaczewie. Projektant na wykonanie projektu ma czas do 28 czerwca br., ale mamy już wstępną wersję części rysunków.
Jesteśmy obecnie na etapie procedur umożliwiających uzyskanie pozwolenia na budowę obiektu, który w przyszłości zapewni dzieciom godne warunki do zajęć z wychowania fizycznego. To niezwykle ważne, aby umożliwić naszym pociechom prawidłowy rozwój ruchowy i rozruszać je po godzinach spędzonych popołudniami przy ekranie komputerów i telefonów.
DF
Pozostałe aktualności
-

Zakończono modernizację świetlicy wiejskiej w Targówce
-

Budowa drogi w Feliksowie
-

Urząd Gminy Malanów bardziej dostępny – rusza budowa windy
-

Nowe ogrodzenie wokół świetlicy w Miłaczewie
-

Fundusz sołecki w akcji: Nowy wyciąg spalin w garażu OSP Grąbków
-

Nowe okna w świetlicy wiejskiej w Bibiannie
-

Fundusz sołecki w praktyce: świetlica w Dziadowicach po remoncie
-

Umowa podpisana, świetlica w Targówce czeka na modernizację
-

Umowa podpisana, w Skarżynie-Kolonii powstanie nowa droga
-

Plac zabaw z siłownią zewnętrzną w Feliksowie
-

143 tys. zł dotacji na przebudowę dróg gruntowych
-

Podpisano umowę na budowę wodociągów
-

Chodnik w Dziadowicach oficjalnie oddany do użytku
-

Pięknieje Wielkopolska Wieś – Targówka z dotacją na modernizację świetlicy
-

Rusza przetarg na montaż instalacji fotowoltaicznych w Gminie Malanów